Mẫu thiết kế nhà ống tân cổ điển 3 tầng 1 tum 4x18m có sân trước đổ ô tô 6m ở P. Thới An

Thiết kế nhà ống tân cổ điển 3 tầng 1 tum là một giải pháp kiến trúc tuyệt vời, được nhiều gia chủ ưa chuộng nhờ sự kết hợp tinh tế giữa phong cách cổ điển và nét hiện đại. Mẫu nhà ống tân cổ điển 3 tầng 1 tum 4x18m này mang vẻ đẹp thanh lịch, tinh tế nhưng vẫn sang trọng đậm chất châu Âu, đồng thời tối ưu công năng sử dụng đặc biệt với sân trước đổ ô tô rộng 6m.
Thiết Kế Nhà Ống Tân Cổ Điển 3 Tầng 1 Tum: Giải Pháp Kiến Trúc Thanh Lịch
Thiết kế nhà ống tân cổ điển 3 tầng 1 tum không chỉ là một lựa chọn về mặt thẩm mỹ mà còn đáp ứng đầy đủ các yêu cầu về công năng và tiện nghi của cuộc sống hiện đại. Phong cách tân cổ điển tập trung vào các đường nét mềm mại, các chi tiết hoa văn tinh xảo trên nền kiến trúc chắc chắn, tạo nên sự hài hòa và thanh lịch cho tổng thể ngôi nhà. Sự cân đối, đối xứng trong bố cục các chi tiết là điểm nhấn quan trọng, giúp ngôi nhà dù diện tích không quá rộng nhưng vẫn toát lên vẻ sang trọng.
Không chỉ mang vẻ đẹp từ hình thức, thiết kế nhà ống tân cổ điển 3 tầng 1 tum còn đề cao tính ứng dụng. Phân chia hợp lý không gian sinh hoạt dạng mở giúp tối ưu diện tích, đồng thời kết hợp hệ cửa kính khung nhôm giúp tận dụng ánh sáng tự nhiên hiệu quả, giảm thiểu sự tù túng thường thấy ở các mẫu nhà ống truyền thống. Điều này mang đến môi trường sống rộng rãi, sáng sủa và thoáng đãng, rất phù hợp với gu thẩm mỹ và nhu cầu sinh hoạt của các gia đình hiện đại.

Mẫu Nhà Ống Tân Cổ Điển 3 Tầng 1 Tum 4x18m: Vẻ Đẹp Âu Châu Tinh Tế
Khảo sát mẫu nhà ống tân cổ điển 3 tầng 1 tum 4x18m sẽ dễ dàng nhận thấy phong cách kiến trúc đậm chất châu Âu tràn ngập trong từng chi tiết. Với tỷ lệ chuẩn xác, các đường nét hoa văn được thiết kế vừa phải, không quá cầu kỳ mà vẫn giữ được nét mềm mại, thanh thoát đặc trưng. Sự kết hợp hài hòa giữa các yếu tố cổ điển cùng vật liệu hiện đại góp phần làm cho mẫu nhà trở thành điểm nhấn nổi bật trong khu phố.
Ngoài ra, cách phối hợp giữa màu sắc và vật liệu cũng đóng vai trò quan trọng trong việc thể hiện sự tinh tế. Mẫu nhà này sử dụng tone màu kem nhẹ nhàng cho mặt tiền, tạo cảm giác ấm áp và sang trọng. Cùng với đó là lan can sắt mỹ thuật hoa văn uốn lượn, vừa mang tính nghệ thuật vừa củng cố nét đẹp quý phái cho toàn bộ khối kiến trúc, khiến cho bất cứ ai đi qua cũng không khỏi ngước nhìn.

Thiết Kế Mặt Tiền Nhà Ống 3 Tầng 1 Tum Tân Cổ Điển: Điểm Nhấn Sang Trọng và Quý Phái
Mặt tiền nhà ống tân cổ điển được xem là linh hồn của toàn bộ công trình, chính vì thế thiết kế tại khu vực này luôn được chú trọng đặc biệt. Mẫu nhà với mặt tiền nổi bật với tone màu kem nhẹ nhàng kết hợp lan can sắt mỹ thuật hoa văn uốn lượn, tạo nên điểm nhấn mềm mại và quý phái dễ dàng ghi dấu ấn sâu sắc trong lòng người nhìn.
Ngoài yếu tố màu sắc và hoa văn, các hệ cột vuông có gờ phào nhẹ nhàng được bố trí cân đối giữa các tầng cũng góp phần không nhỏ thể hiện sự vững chắc và phong cách tân cổ điển sang trọng. Những cột trụ này không chỉ có vai trò chịu lực mà còn là chi tiết trang trí tinh tế, làm tăng tính thẩm mỹ, thu hút ánh nhìn ngay từ lần đầu tiên.

Nhà Ống Tân Cổ Điển 3 Tầng 1 Tum Có Sân Trước 6m: Tiện Nghi và Thẩm Mỹ Hoàn Hảo
Một trong những ưu điểm nổi bật của mẫu nhà ống tân cổ điển 3 tầng 1 tum này chính là phần sân trước rộng rãi đến 6m, đủ để đổ ô tô và tạo khoảng không gian sinh hoạt ngoài trời thoáng đãng. Không gian sân được quy hoạch ngăn nắp, kết hợp với cổng sắt nghệ thuật và mái che ngói nhỏ càng làm tăng thêm tính tiện nghi cũng như thẩm mỹ cho căn nhà.
Sân trước không chỉ là nơi để xe ô tô tiện lợi mà còn là điểm giao hòa tuyệt vời giữa không gian bên trong và bên ngoài ngôi nhà. Với diện tích hợp lý cũng tạo cơ hội để gia chủ trồng cây xanh, tạo môi trường sống trong lành và thư giãn nhẹ nhàng sau những giờ làm việc căng thẳng. Đây chính là yếu tố giúp không gian sống không bị bó hẹp mà trở nên thân thiện và tràn đầy sức sống.

Chi Tiết Thiết Kế Ngoại Thất Nhà Ống Tân Cổ Điển 3 Tầng 1 Tum: Sự Hài Hòa Giữa Cổ Điển và Hiện Đại
Ngoại thất của mẫu nhà được chăm chút đến từng chi tiết nhỏ nhằm tạo nên sự kết hợp hài hòa giữa phong cách tân cổ điển và sự tiện nghi hiện đại. Đặc biệt, tầng trệt được ốp đá marble tự nhiên, vừa sang trọng vừa chống bám bẩn, giúp ngôi nhà luôn giữ được vẻ ngoài sạch sẽ và bề thế ngay khi bước vào.
Bên cạnh đó, các tầng lầu sử dụng hệ cửa kính khung nhôm tối màu không chỉ giúp tận dụng tối đa ánh sáng tự nhiên mà còn tạo nên sự đối lập tinh tế giữa cổ điển và hiện đại. Việc kết hợp vật liệu kính hiện đại và khung kim loại sơn tĩnh điện càng làm tăng thêm nét sang trọng, đồng thời đảm bảo độ bền bỉ và khả năng cách âm, cách nhiệt tốt cho ngôi nhà.

Ốp Đá Marble Tầng Trệt: Nâng Tầm Vẻ Đẹp Bề Thế Cho Nhà Ống Tân Cổ Điển 3 Tầng 1 Tum
Việc sử dụng đá marble tự nhiên để ốp tầng trệt không chỉ là giải pháp thẩm mỹ mà còn rất thiết thực trong việc giữ gìn và bảo vệ phần chân tường. Đá marble có độ bền cao, khả năng chống thấm nước và chống bám bụi cực tốt, giúp giảm thiểu việc vệ sinh và sửa chữa trong quá trình sử dụng lâu dài.
Ngoài công dụng chống bám bẩn, sắc trắng ngà và những đường vân tự nhiên của đá marble còn làm nổi bật sự bề thế, sang trọng cho tầng trệt. Cảm giác đầu tiên khi bước vào nhà là sự trang nhã nhưng không kém phần đẳng cấp, tạo dựng ấn tượng tốt đẹp cho khách tới thăm cũng như làm tăng giá trị tổng thể căn nhà.

Cổng Sắt Nghệ Thuật và Mái Che: Giải Pháp Bảo Vệ và Tăng Tính Thẩm Mỹ Cho Mặt Tiền Nhà Ống
Cổng sắt nghệ thuật với các họa tiết hoa văn uốn lượn không chỉ làm nhiệm vụ kết nối không gian sân trước và ngôi nhà mà còn đóng vai trò bảo vệ an toàn một cách hiệu quả. Sự kết hợp hài hòa giữa tính nghệ thuật và công năng bảo vệ giúp mặt tiền nhà nổi bật với vẻ duyên dáng và sang trọng.
Điểm nhấn đáng chú ý là mái che ngói nhỏ được bố trí phía trên cổng, vừa mang chức năng chống nắng mưa trực tiếp, vừa làm mềm mại, tăng thêm vẻ thân thiện cho tổng thể mặt tiền. Giải pháp này cho thấy sự cân bằng tuyệt vời giữa yếu tố thẩm mỹ và thực tiễn trong thiết kế nhà ống tân cổ điển 3 tầng 1 tum.
Thiết Kế Cửa Kính Khung Nhôm Tối Màu: Tối Ưu Ánh Sáng Tự Nhiên Cho Nhà Ống Tân Cổ Điển
Thiết kế cửa kính khung nhôm tối màu là một giải pháp hiện đại nổi bật được áp dụng trong mẫu nhà ống tân cổ điển 3 tầng 1 tum nhằm tối ưu ánh sáng tự nhiên, góp phần tạo nên sự thông thoáng và thoải mái cho không gian sống bên trong. Khung nhôm bền chắc, ít bị oxi hóa, phù hợp với điều kiện khí hậu Việt Nam.
Việc lựa chọn khung nhôm màu tối vừa có tác dụng làm nổi bật các chi tiết ngoại thất cổ điển, vừa tạo chiều sâu thị giác giúp mặt tiền sinh động và thu hút hơn. Khả năng đón sáng tối ưu từ các khung kính lớn cũng tạo nên môi trường sống gần gũi thiên nhiên, tăng cường sự kết nối qua lại giữa không gian ngoài trời và nội thất bên trong ngôi nhà.
Sân Thượng Tầng Tum: Không Gian Thư Giãn Lý Tưởng Cho Gia Đình
Tầng tum thiết kế sân thượng rộng rãi có mái lam che nắng kết hợp tiểu cảnh xanh tạo nên không gian thư giãn lý tưởng cho các thành viên trong gia đình. Đây là nơi gia chủ có thể kê bàn trà, bố trí chậu cây cảnh hoặc tạo góc sinh hoạt ngoài trời thoáng đãng, giúp cân bằng cuộc sống đô thị vốn bận rộn.
Đặc biệt, sự kết hợp giữa yếu tố thiên nhiên và kiến trúc hiện đại trên sân thượng không chỉ giúp cải thiện chất lượng cuộc sống mà còn gia tăng giá trị sử dụng cho ngôi nhà. Khu vực này trở thành không gian đáng mơ ước, mang lại cảm giác thư thái, yên bình và gần gũi với cảnh quan thiên nhiên.
Tổng Quan Thiết Kế Nhà Ống Tân Cổ Điển 3 Tầng 1 Tum: Sự Kết Hợp Hoàn Hảo Giữa Phong Cách và Công Năng
Tổng thể mẫu nhà ống này là sự hòa quyện hài hòa giữa phong cách tân cổ điển sang trọng và công năng hiện đại, rất phù hợp với các khu đô thị đang phát triển như Phường Thới An. Từng chi tiết dù nhỏ nhất đều được chăm chút kỹ lưỡng nhằm đảm bảo sự tiện nghi, thoải mái, xen lẫn nét thẩm mỹ lịch lãm.
Bằng việc kết hợp vật liệu cao cấp, bố trí mặt bằng hợp lý và xử lý ngoại thất tinh tế, ngôi nhà không chỉ đáp ứng được nhu cầu sử dụng lâu dài mà còn là biểu tượng cho gu thẩm mỹ tinh tế của gia chủ. Mẫu thiết kế nhà ống tân cổ điển 3 tầng 1 tum có sân trước đổ ô tô 6m xứng đáng là lựa chọn tối ưu cho ai muốn sở hữu không gian sống vừa đẹp vừa hiện đại.
Mẫu thiết kế nhà ống tân cổ điển 3 tầng 1 tum 4x18m có sân trước đổ ô tô 6m ở Phường Thới An
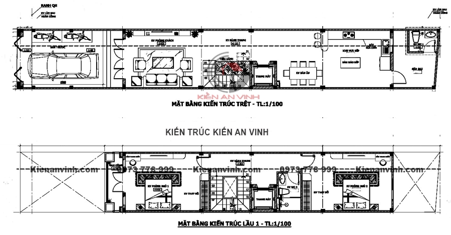
Tọa lạc tại Phường Thới An, mẫu thiết kế nhà ống tân cổ điển 3 tầng 1 tum có sân trước đổ ô tô 6m thể hiện sự phát triển của kiến trúc nhà phố hiện đại, nơi diện tích hạn chế nhưng vẫn đảm bảo các yếu tố thẩm mỹ và tiện nghi. Với diện tích 4x18m, ngôi nhà tận dụng tối đa chiều dài để bố trí không gian trong nhà và cùng lúc vẫn có sân rộng đủ giữ xe ô tô.
Thiết kế này đáp ứng đầy đủ các giải pháp về kỹ thuật, thẩm mỹ và phong thủy, đồng thời phù hợp với xu hướng xây dựng nhà ở đô thị đang ngày càng được ưa chuộng. Sự kết hợp giữa nét đẹp tân cổ điển và công năng thông minh đã tạo nên một tổng thể hoàn chỉnh, đảm bảo chất lượng cuộc sống cho các thành viên gia đình trong thời gian dài.
Tổng kết
Mẫu thiết kế nhà ống tân cổ điển 3 tầng 1 tum 4x18m với sân trước rộng 6m đổ ô tô tại Phường Thới An chính là minh chứng cho sự kết hợp hài hòa giữa kiến trúc tân cổ điển thanh lịch và các tiện ích hiện đại, đáp ứng nhu cầu cuộc sống ngày nay. Từ mặt tiền với tone màu kem dịu nhẹ, lan can sắt mỹ thuật, hệ cột vuông cân đối, đến các chi tiết ốp đá marble tầng trệt và sân thượng xanh mát đều tạo nên một không gian sống lý tưởng, sang trọng và đầy đủ tiện nghi.
Với phong cách thiết kế tinh tế, công năng hợp lý và sự chăm chút cho từng chi tiết, mẫu nhà này sẽ là lựa chọn hoàn hảo cho những ai đang tìm kiếm một ngôi nhà vừa đẹp vừa tiện nghi, góp phần nâng cao chất lượng cuộc sống trong môi trường đô thị nhộn nhịp. Hy vọng bài viết sẽ giúp bạn có thêm nhiều ý tưởng và cảm hứng kiến tạo nên tổ ấm mơ ước của mình.
CÔNG TY TNHH THIẾT KẾ – XÂY DỰNG NHÀ KIẾN AN VINH
Trụ sở chính: 434 Nguyễn Thái Sơn, Phường An Nhơn, TP. Hồ Chí Minh
VPĐD1 : 52 Tân Chánh Hiệp 36, Phường Trung Mỹ Tây, Quận 12, TP. Hồ Chí Minh
Chăm sóc khách hàng: (08)3715 6379 – (08) 6277 0999
Phòng Kế Toán: (08) 3715 2415 - (028) 3715 6379
Phòng Vật tư: 0981 507 588
Hotline: 0973 778 999
Email: kienanvinh2012@gmail.com
Website: kienanvinh.com
CÁC bài viết liên quan
Đội ngũ thiết kế
Đội ngũ thi công họp tại Công ty Kiến An Vinh
Công trình Kiến An Vinh thi công




Bình luận